Skip to main content

Updated Design

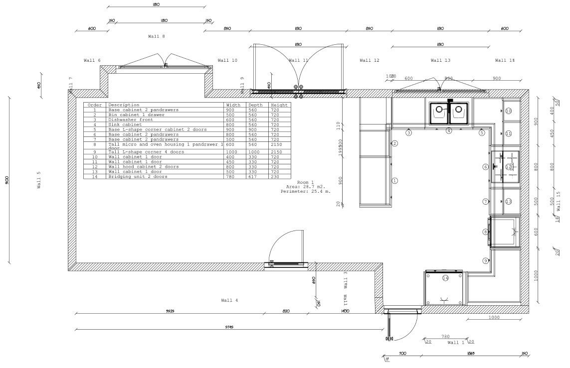
The following design content follows the last design meeting.

Key changes to note:

  1. The integrated fridge freezer has been replaced by a 70cm wide free-standing fridge freezer. Despite the wall length being greater than that used in the previous version of the layout, it will not be possible to accommodate the increased width of the fridge freezer without reducing the width of the tall larder unit.
  2. The tall larder size has been amended to accommodate the dimensions required for the 70cm fridge freezer. The reduced width of the larder means a further 100mm becomes available for other units. The larder unit will be configured with L-shaped shelves to a depth of 330mm.
  3. The hob unit has been amended. It is now 800mm wide, and has two pan-drawers, with an internal drawer.
  4. The drawer unit to the right of the hob, unit 7, has been increased from a width of 400mm to 500mm. This has also been reconfigured to two pan-drawers, with an internal drawer. The increased width of this unit absorbs the extra 100mm of space available as a result of having to reduce the width of the larder.
  5. The pull-out corner unit has been removed.
  6. The pull-out bin unit has been relocated to the corner of the peninsula, nearest to the dishwasher. This changed the space available to the left of the unit.
  7. A 900mm wide two pan-drawer unit has replaced the space previously occupied by the drawer unit and bin unit. The new 900mm wide pan-drawer unit also includes an internal drawer.
  8. The bar has been removed from the design.
  9. The profile handles for the larder doors now show round knobs. This is feasible because the door weights will reduce to the door sizes reducing.
  10. The extractor wall unit has been increased to 800mm wide, in step with the hob unit.
  11. The wall unit to the right of the extractor unit has been increased to 500mm wide, in step with the drawer unit below it.
holybourne kitchen design showing 720mm high wall units

Illustration - Freestanding enclosed 70cm fridge freezer

kitchen design illustration showing 575mm high wall units

Illustration - 575mm wall units

kitchen design illustration showing 720mm high wall units

Illustration - 720mm high wall units

Illustration showing reconfigured hob and pan drawer units

Illustration - Hob and pan drawer units

kitchen design illustration showing peninsula configuration

Illustration - Pensinsula configuration

kitchen design illustration showing sink and tap in front of window

Illustration - Facing window

kitchen design illustration showing freestanding enclosed fridge freezer

Illustration - facing fridge freezer

Cabinetry and Accessories

The following materials and accessories have been specified for the cabinetry.

Fronts, Panels, Plinth, and Carcasses

The following finish applies to door and drawer fronts, panels, fillers, and plinth.

The following finish applies to wall unit fronts and filler. This finish will also be used for carcasses and shelves.

Accessories

Accessories cover internal cabinetry such as bins and pull-outs, as well as handles.

This will be the pull-out bin in the 500mm wide base unit that will be next to the dishwasher.

This will be the bin within the sink unit.

Warranties

Cabinetry

Egger Residential use: Typically covered by a 25-year warranty. Some product lines may offer up to 30 years, depending on the specific decor or finish.

A six-year warranty is given by Sustique's manufacturing partner that covers manufacturing defects for all fronts, carcasses, and panels.

Mechanisms

Drawer runners, hinges, and pull-outs carry manufacturer lifetime warranties against manufacturing defects. These will exclude wear and tear, or misuse.

Handles

Furnipart give a lifetime warranty on their handles.

 

Sink and Tap

Sink and tap decisions still need to be made, but the following Blanco and Franke combinations are offered as options.

Franke Option

Blanco Option

AEG Appliances - Suggested

AEG strikes a confident balance between innovation, energy efficiency, and stylish design. It’s a smart choice for those seeking performance-driven appliances with a lower lifetime environmental impact—all at a more accessible price point than luxury brands. Many AEG products are made in Europe and backed by a respected manufacturer with clear sustainability commitments.

The following appliances with budget limitations as a key driver.

AEG Warranty

As an AEG Premier Partner, Sustique provides a standard 5-year warranty on virtually all AEG appliances. There are exceptions, and we inform customers where exceptions may occur. We also register warranties on behalf of customers.

Siemens Warranty

The standard Siemenswarranty applies. Promotions may extend the warranty term.

Worktops and Upstands - Yet to be confirmed

As part of this kitchen design, we've specified compact laminate as the worktop material. It's been selected due to the need to keep within a challenging overall budget, while still delivering a practical and visually appealing solution.

The desired worktop option is Porecelain, but this is a budget stretch.

Compact laminate is a durable, high-density material made from multiple layers of paper impregnated with resin, compressed under high pressure. It offers a sleek, modern appearance with a thin profile and often comes in matt, stone-effect, or woodgrain finishes.

Benefits:

  • Water-resistant and durable, making it suitable for kitchen environments.

  • Non-porous surface that’s easy to clean and hygienic.

  • Resistant to impact, scratches, and general wear - but good care is essential for long-term appearance.

  • Allows for undermount sinks and drainage grooves, unlike standard laminate.

Limitations:

  • While durable, it doesn’t match the premium feel or long-term resilience of materials like wood, granite, and porcelain/ceramic.

  • Visible edge seams and limited repairability in case of damage.

  • Heat resistance is good, but trivets are essential to protect the surface from very hot items.

Compact laminate is included in this design as a considered compromise—balancing functionality and style within the constraints of the project budget. Should the budget allow in future, this can be revisited and upgraded to a longer-life surface.

Why Formica Aria?

Aria is a UK-made compact laminate worktop offering good durability, modern design, and a lower carbon footprint than imported alternatives. Made without MDF or particleboard, it’s a good choice for indoor air quality, and its long lifespan supports sustainable design goals. It meets European E1 and CARB Phase 2 standards for formaldehyde emissions, it’s manufactured in an ISO 14001-certified site focused on environmental impact reduction.

Aria is also made in 3.6M lengths which means two lengths rather than three will be required. This reduces the amount of excess material. 

Warranty

Formica Aria compact laminate worktops come with a 10-year limited manufacturer’s warranty in the UK.

  • Covers manufacturing defects in materials or workmanship under normal use.

  • Applies to interior use only (typically kitchens, utility rooms, bathrooms).

  • Warranty is valid from the date of purchase and non-transferable.

  • Installation must follow Formica’s fabrication and fitting guidelines to remain valid.

  • Excludes damage from misuse, poor installation, impact, heat, or unapproved cleaners.

Space Type

Style

Materials

x

User Access

This is where you can login to your account. 

When you have an account and are logged in you will be able to manage your account, view and comment on content specific to your project, and add comments to blog posts and news articles.